Tổng quan toà S6
òa S6 là một trong 6 tòa căn hộ cao tầng thuộc dự án chung cư cao cấp Sunshine City tại Khu đô thị Nam Thăng Long – Ciputra, quận Bắc Từ Liêm (giáp ranh Tây Hồ), Hà Nội.
Vị trí và Tổng quan dự án:
- Vị trí: Nằm trong quần thể Khu đô thị Ciputra, ngay sát sông Hồng và gần tòa tháp VietinBank. Vị trí được đánh giá là đẹp, thuận tiện kết nối đến các trục giao thông chính như cầu Thăng Long, cầu Nhật Tân, đường Phạm Văn Đồng, Võ Chí Công.
- Chủ đầu tư: Tập đoàn Sunshine Group.
- Quy mô dự án Sunshine City: Gồm 6 tòa chung cư (S1-S6) cao 38-40 tầng và biệt thự liền kề

Thiết kế toà S6
- Vị trí Tòa S5-S6: Được đánh giá là 2 tòa có vị trí đẹp, với tầm nhìn (view) hướng ra sân golf, sông Hồng và cầu Nhật Tân.
- Thiết kế: Áp dụng phong cách kiến trúc hiện đại, sang trọng theo tiêu chuẩn châu Âu/Mỹ.
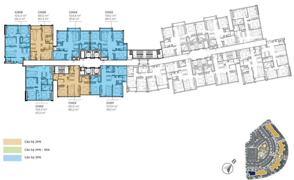
- Loại hình căn hộ: Đa dạng, bao gồm căn hộ tiêu chuẩn và căn hộ Duplex.
- Diện tích căn hộ (tham khảo): Các căn hộ tại tòa S5-S6 có diện tích phổ biến từ khoảng 82m² đến 111m² (với công năng từ 2 đến 4 phòng ngủ) và các căn Duplex lớn hơn.
- Đặc điểm căn hộ: Các căn hộ thường có logia và ban công rộng, sử dụng kính Low-E, tối ưu ánh sáng tự nhiên và tầm nhìn panorama.

Tiện ích:
Cư dân tòa S6 được thừa hưởng toàn bộ tiện ích nội khu đẳng cấp của Sunshine City:
- Tiện ích trên cao: Sky Bar, đường dạo bộ trên không, bể bơi vô cực, sân đỗ trực thăng (trên nóc 6 tòa).
- Tiện ích nội khu khác: Bể bơi bốn mùa, bể bơi trong nhà và ngoài trời, gym, spa, phòng tập Yoga, siêu thị Sunshine Mart, trường quốc tế Sunshine Maplebear, khu vui chơi trẻ em, quảng trường nhạc nước, hệ thống nhà hàng, hầm rượu vang.
- An ninh: Hệ thống an ninh 24/24, kiểm soát bằng thẻ thông minh.
- Tiện ích ngoại khu: Thừa hưởng các tiện ích sẵn có của KĐT Ciputra (sân golf, sân tennis, trường học quốc tế…).
Tòa S6, cùng với các tòa khác trong dự án Sunshine City, mang đến một không gian sống sang trọng, hiện đại và tiện nghi theo tiêu chuẩn sống cao cấp.